煤化工及煤焦油深加工过程中含酚废水处理技术
在以煤为原料煤气发生炉在生产过程中,必须用大量的冷却水和洗涤水净化发生炉产生的煤气,因此,在煤气化过程中会产生大量的含酚废水。由于,该废水有机物成分复杂、含量高,治理非常困难。煤气发生炉产生的含酚废水的污染问题也一直困扰着地方环保部门。
北京北清工研科技有限公司在络合萃取处理有机废水可研基础上开发的煤气发生炉含酚废水处理技术,该技术采用先进工艺与设备、低成本治理、废水治理后内封闭循环,保证了含酚废水零排放。该技术简化废水深度处理工序,既节约了生产用水又解决了煤气废水的污染问题。达到了节能环保的要求。
络合萃取技术处理煤气废水方案
本方案采用的工艺大体分为两大步骤;即:预处理除去废水中的油和悬浮物;多级逆流萃取分离(二级处理)脱除废水中的酚类物质;处理后的废水进入生产工序回用或生化处理达标后排放。
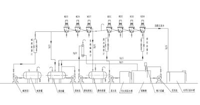
- 工艺路线图:

☆ 工艺路线说明:
第一步:将待处理煤气化废水泵入混合器后进入预处理水槽,对废水进行PH值调节。此时废水会放出的气体进吸收塔吸收净化。废水中乳化的焦油会破乳析出,经油水分离收集。
第二步:集液器中除去油和悬浮物的清液进入萃取脱酚工序。将待处理的废水清液和BQ型高效络合萃取剂通过计量后送入高效离心萃取器进行多级逆流萃取脱酚,同时用碱液对含酚负载溶剂进行反萃,脱酚后的废水进入生产工序回用或进入下一级生化处理工序。反萃后的溶剂回到溶剂罐循环使用,反萃脱出的酚钠液体收集储存。收集到一定数量后,经统一处理提取出粗酚作为化工原料出售或者进行进一步的精馏分离。由于高效离心萃取器的特点可进行大流比的萃取与反萃,相当于将废水中的酚高度浓缩到其水量的1/30~1/40。
工艺指标:
(1)含酚废水:含酚量 3000~30000ppm;COD含量10000~40000ppm;
(2)处理后废水:挥发酚含量≤10ppm;COD≤2500ppm;经过脱氨脱氮工序后,可直接达到可生化处理的要求。
络合萃取技术处理煤气废水技术基于废水成分复杂性,不易生化降解,用简单的方法先将其部分净化。在处理过程中应首先着眼于将其有价值的酚回收;同时有效地降低COD、氨氮、硫化物、氰化物等,为后续的脱氨脱氮工序及生化处理提供必要条件。
简单流程图

